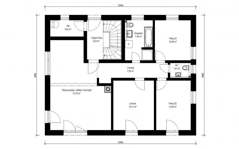
Dva samostatné byty, jeden v přízemí a druhý v patře domu nabízí vila Genera 3-191. Každý byt má dispozici 4 + KK, kterou v přízemí doplňuje technická místnost, koupelna a samostatné WC. V patře je místo technické místnosti zvětšený kuchyňský kout s přibyla spíž.
Genera 3-191- dřevostavba na klíč
Dodavatel:
Haas Fertigbau s.r.o.
Parametry projektu Genera 3-191- dřevostavba na klíč
| Společnost | Haas Fertigbau s.r.o. |
| Web | www.haas-fertigbau.cz/drevostavby/easy-1-23 |
| Charakteristika domu | samostatný |
| Počet podlaží | Vícepodlažní |
| Generačnost | Vícegenerační |
| Konstrukční systém | Panelový |
| Podlahová plocha (užitná) | 191,17 m2 |
| Zastavěná plocha | 124,1 m2 |
| Dispozice | Větší jak 5+1 |
| Cena hrubé stavby (vč. DPH) | 6 760 000,00 Kč |
| Cena dřevostavby na klíč (vč. DPH) | 10 229 000,00 Kč |












Čerstvé novinky ze světa dřevostaveb