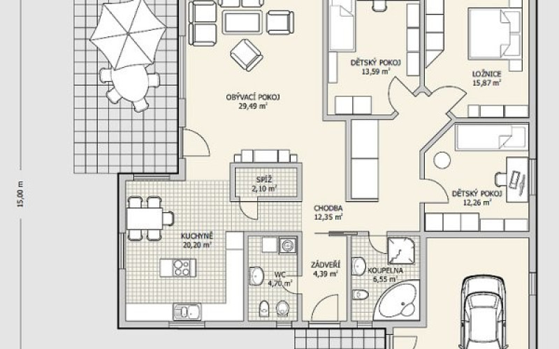
Přízemní dřevostavba na klíč s valbovou střechou, garáží a zajímavým řešením propojení kuchyně s obývacím pokojem.
Stavíme dřevostavby nejen z našeho katalogu, ale také dle individuálního přání našeho klienta.
Díky našim kontaktům nabízíme našim klientům tzv. služby od A po Z. Pomáháme se zprostředkováním pozemku, či prodeje bytu, s realizací a stavbou dřevostavby, můžeme doporučit a zprostředkovat dodavatele podlah a jiného vybavení domu jako např. kuchyňské linky ......




Čerstvé novinky ze světa dřevostaveb