Patrová dřevostavba jejíž dispoziční řešení vychází z konceptu Origami (poskládejte si svůj dům podle sebe).
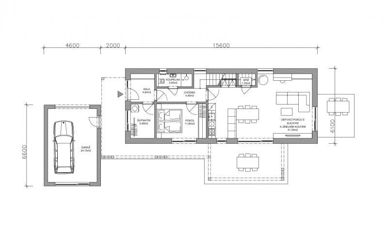
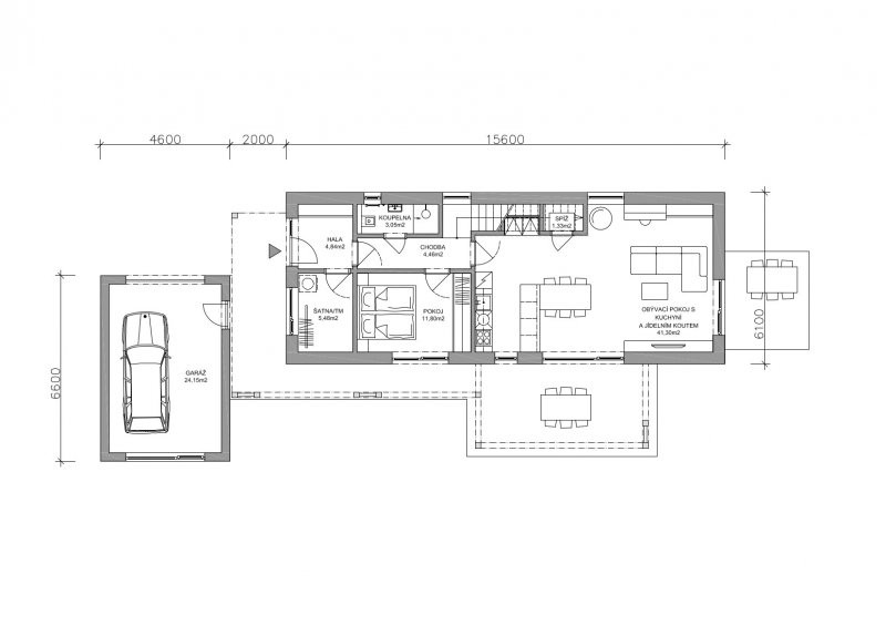
Dispozice domu 5+kk je navrženy především účelně prakticky a je inspirována moderním přístupem k bydlení. V parteru jsou situovány vstupní prostory, závětří a garáž. Uvnitř objektu pak hlavní obytný prostor, ložnice a veškeré technické příslušenství domu. Podkroví skýtá jednotlivé ložnice s hygienickým zázemím, variantně přestavitelné na samostatnou bytovou jednotku.
Hmota domu je doplněna dřevěnou přístavbou a lehkou markýzou mezi terasami a vstupem. Dřevo je taktéž použito na fasádě v meziokenních plochách a ve formě slunolamů nad jižními okny. Fasáda hlavní hmoty domu je pojednána hladkou bílou omítkou. Velké plochy oken jsou voleny na jižní straně u obytných místností, rámy jsou navrženy ve žluté barvě.





Čerstvé novinky ze světa dřevostaveb