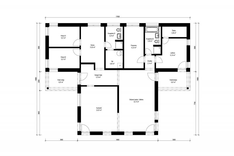
Bungalov Inspirace 3-146 skrývá za rovnými liniemi moderního vzhledu velký obývací pokoj s oddělenou kuchyní, které lze jednoduše propojit. Další tři ložnice a pracovnu doplňuje ještě herna a dvě koupelny, šatna a technická místnost. U vstupu do domu je kryté závětří a na druhé straně domu krytá terasa, navazující na obývací pokoj.
Inspirace 3-146 - dřevostavba na klíč
Dodavatel:
Haas Fertigbau s.r.o.
Parametry projektu Inspirace 3-146 - dřevostavba na klíč
| Společnost | Haas Fertigbau s.r.o. |
| Web | www.haas-fertigbau.cz/drevostavby/easy-1-23 |
| Charakteristika domu | samostatný |
| Počet podlaží | Jednopodlažní |
| Generačnost | Jednogenerační |
| Konstrukční systém | Panelový |
| Podlahová plocha (užitná) | 145,91 m2 |
| Zastavěná plocha | 197,24 m2 |
| Dispozice | 5+kk/5+1 |
| Cena hrubé stavby (vč. DPH) | 7 240 000,00 Kč |
| Cena dřevostavby na klíč (vč. DPH) | 9 817 000,00 Kč |










Čerstvé novinky ze světa dřevostaveb