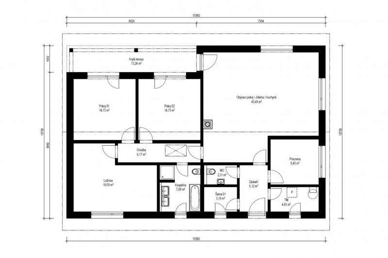
Úctyhodných 129 m2 bungalovu Instinkt 2-129 je užitná plocha, která bude vyhovovat i těm nejnáročnějším uživatelům. Francouzská okna nabízejí možnost vyjít z obývacího a obou menších pokojů rovnou na krytou terasu. Půdorys je přizpůsobený současnému stylu života. Kromě dvou menších pokojů jistě oceníte prostorný obývací pokoj s kuchyní a jídelnou, stejně jako dostatečně velkou ložnici a jako bonus pracovnu.
Instinkt 2-129 - dřevostavba na klíč
Dodavatel:
Haas Fertigbau s.r.o.
Parametry projektu Instinkt 2-129 - dřevostavba na klíč
| Společnost | Haas Fertigbau s.r.o. |
| Web | www.haas-fertigbau.cz/drevostavby/easy-1-23 |
| Charakteristika domu | samostatný |
| Počet podlaží | Jednopodlažní |
| Generačnost | Jednogenerační |
| Konstrukční systém | Panelový |
| Podlahová plocha (užitná) | 128,51 m2 |
| Zastavěná plocha | 169,31 m2 |
| Dispozice | 5+kk/5+1 |
| Cena hrubé stavby (vč. DPH) | 4 460 000,00 Kč |
| Cena dřevostavby na klíč (vč. DPH) | 6 750 000,00 Kč |








Čerstvé novinky ze světa dřevostaveb