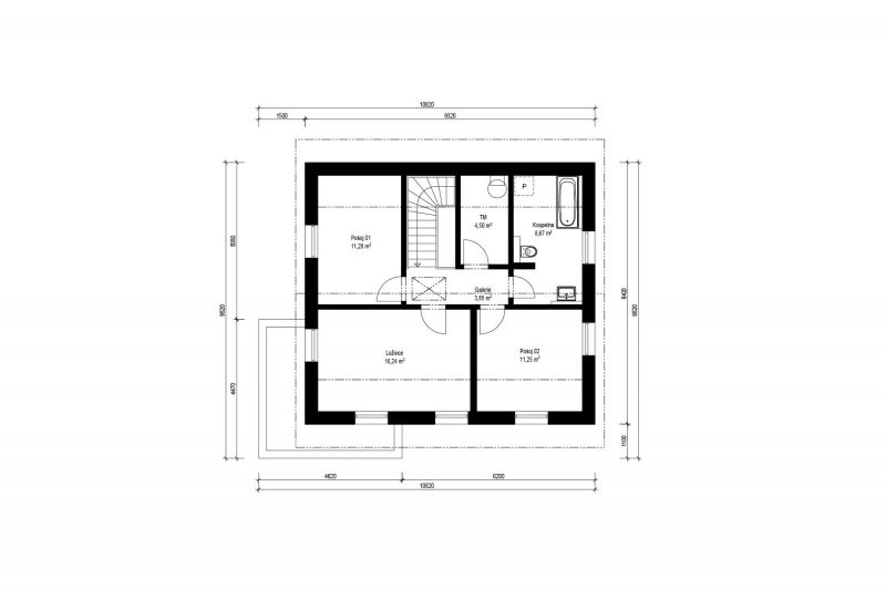
Pro dům Jubilée 1-126 vybrali architekti společnosti Haas Fertigbau půdorys 10,8 x 9,5 m se zimní zahradou. Užitná plocha 126 m2 skrývá dispozici 5 + KK. Zimní zahradu s velkými prosklenými plochami zakrývá moderní plochá střecha.
Jubilée 1-126 - dřevostavba na klíč
Dodavatel:
Haas Fertigbau s.r.o.
Parametry projektu Jubilée 1-126 - dřevostavba na klíč
| Společnost | Haas Fertigbau s.r.o. |
| Web | www.haas-fertigbau.cz/drevostavby/easy-1-23 |
| Charakteristika domu | samostatný |
| Počet podlaží | Vícepodlažní |
| Generačnost | Jednogenerační |
| Konstrukční systém | Panelový |
| Podlahová plocha (užitná) | 125,85 m2 |
| Zastavěná plocha | 88,61 m2 |
| Dispozice | 5+kk/5+1 |
| Cena hrubé stavby (vč. DPH) | 4 120 000,00 Kč |
| Cena dřevostavby na klíč (vč. DPH) | 6 776 000,00 Kč |












Čerstvé novinky ze světa dřevostaveb