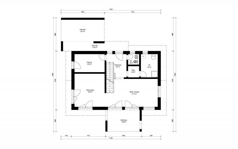
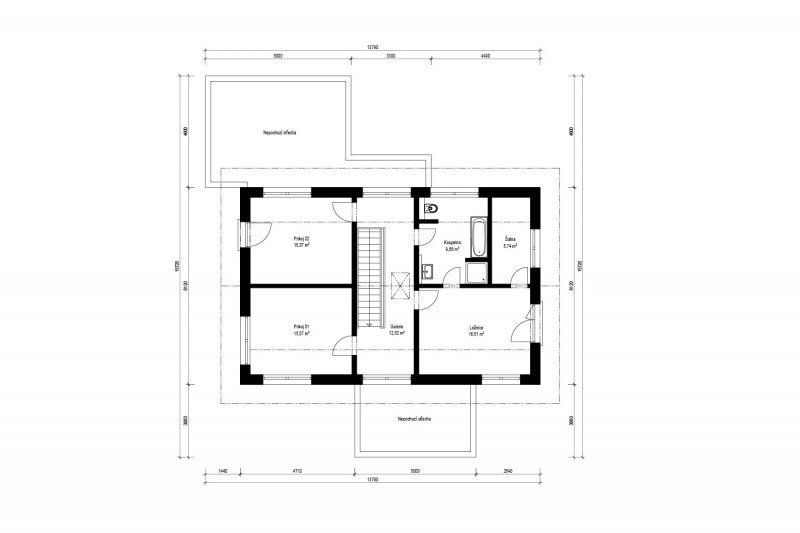
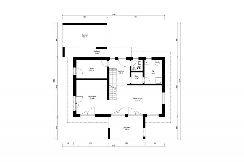
Zvnějšku vás dřevostavba Jubilée 2-154 s dispozicí 5 + KK a užitnou plochou 154 m2 zaujme harmonickým kontrastem sedlové střechy o sklonu 25° a plochých střech kryté terasy a parkovacího stání. Celé přízemí je otevřené, ale důsledně zachovává hranice vymezených oblastí. V přízemí je navíc pracovna a v patře tři ložnice a šatna.
Jubilée 2-154 - dřevostavba na klíč
Dodavatel:
Haas Fertigbau s.r.o.
Parametry projektu Jubilée 2-154 - dřevostavba na klíč
| Společnost | Haas Fertigbau s.r.o. |
| Web | www.haas-fertigbau.cz/drevostavby/easy-1-23 |
| Charakteristika domu | samostatný |
| Počet podlaží | Vícepodlažní |
| Generačnost | Jednogenerační |
| Konstrukční systém | Panelový |
| Podlahová plocha (užitná) | 154,29 m2 |
| Zastavěná plocha | 147,33 m2 |
| Dispozice | 5+kk/5+1 |
| Cena hrubé stavby (vč. DPH) | 5 960 000,00 Kč |
| Cena dřevostavby na klíč (vč. DPH) | 8 989 000,00 Kč |








Čerstvé novinky ze světa dřevostaveb