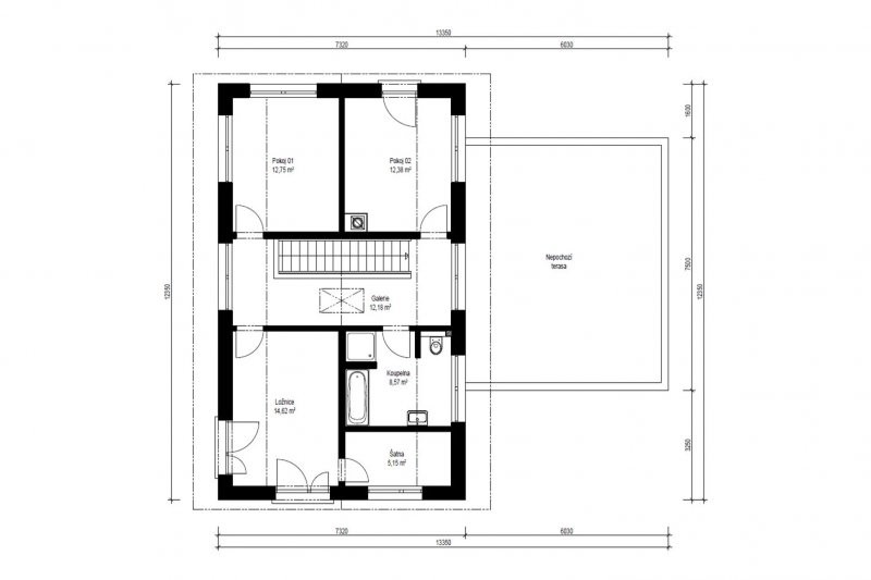
V přízemí moderně řešeného půdorysu rodinného domu Jubilée 3-167 najdete kromě rozlehlého obývacího pokoje a kuchyně s jídelnou také velkou pracovnu, technickou místnost a samostatné WC. V podkroví jsou pak tři ložnice, koupelna a šatna. Vše doplněno o další úložné prostory.
Jubilée 3-167 - dřevostavba na klíč
Dodavatel:
Haas Fertigbau s.r.o.
Parametry projektu Jubilée 3-167 - dřevostavba na klíč
| Společnost | Haas Fertigbau s.r.o. |
| Web | www.haas-fertigbau.cz/drevostavby/easy-1-23 |
| Charakteristika domu | samostatný |
| Počet podlaží | Vícepodlažní |
| Generačnost | Jednogenerační |
| Konstrukční systém | Panelový |
| Podlahová plocha (užitná) | 166,78 m2 |
| Zastavěná plocha | 135,63 m2 |
| Dispozice | 5+kk/5+1 |
| Cena hrubé stavby (vč. DPH) | 6 190 000,00 Kč |
| Cena dřevostavby na klíč (vč. DPH) | 9 294 000,00 Kč |














Čerstvé novinky ze světa dřevostaveb