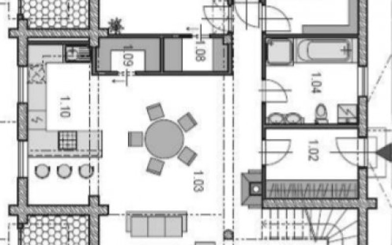
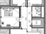
Srubový dům KAREL je určený pro bydlení až 6-ti členné rodiny, nebo k rekreačním účelům až 14-ti osob. V přízemí dřevostavby jsou obvodové stěny i vnitřní příčky tvořeny ze smrkové ( dle přání modřínové nebo borovicové) kulatiny, které svou přirozenou křivostí překrásně vyzdvihují teplo domova. Pouze příčky v koupelně u WC a ložnice jsou tvořeny z Ytongu. Vstup do dřevostavby je možný jak do chodby z boku domu, nebo z čela přímo do obývacího pokoje, který je svou velikostí a otevřenou vrchní galerií nejpůsobivější dominantou domu. V podkroví srubu se nachází malé WC s malou místností a dvěmi velkými pokojemi. Příčky u malého pokoje a WC jsou tvořeny z palubkové (sádrokartonové) konstrukce.
KAREL - srub na klíč
Dodavatel:
Haniš srubové domy s.r.o.
Parametry projektu KAREL - srub na klíč
| Společnost | Haniš srubové domy s.r.o. |
| Charakteristika domu | samostatný |
| Počet podlaží | Vícepodlažní |
| Generačnost | Jednogenerační |
| Konstrukční systém | Sruby |
| Podlahová plocha (užitná) | 200 m2 |
| Zastavěná plocha | 158 m2 |
| Tvar střechy | sedlová |
| Dispozice | Větší jak 5+1 |
| Cena hrubé stavby (vč. DPH) | 3 329 000 Kč |
| Cena dřevostavby na klíč (vč. DPH) | 9 900 000 Kč |






Čerstvé novinky ze světa dřevostaveb