KUBIS 88 má jednoduché linie, ale upoutá Vás svým vzhledem s pultovou střechou a balkónem, působí velmi osobitě a nevšedně. KUBIS 88 Vám navíc nabízí téměř 150 m2 podlahové plochy, což je dostatek prostoru i pro početnější rodinu.
KUBIS 88 - dřevostavba na klíč
Dodavatel:
RD Rýmařov s.r.o.
Parametry projektu KUBIS 88 - dřevostavba na klíč
| Společnost | RD Rýmařov s.r.o. |
| Charakteristika domu | samostatný |
| Počet podlaží | Vícepodlažní |
| Generačnost | Jednogenerační |
| Konstrukční systém | Panelový |
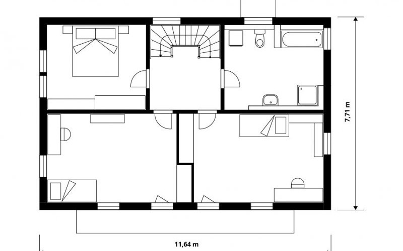
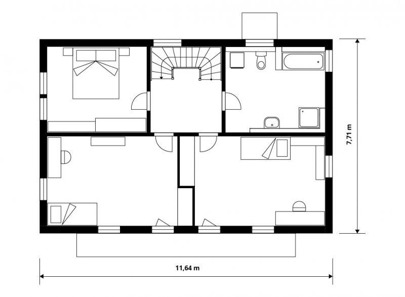
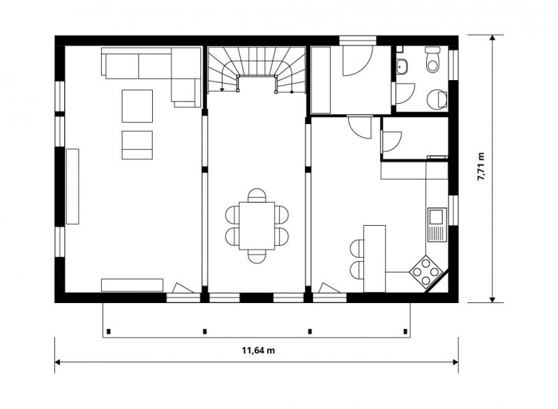
| Podlahová plocha (užitná) | 147,06 m2 |
| Dispozice | 4+kk/4+1 |
| Cena dřevostavby na klíč (vč. DPH) | 4 546 985,00 Kč |








Čerstvé novinky ze světa dřevostaveb