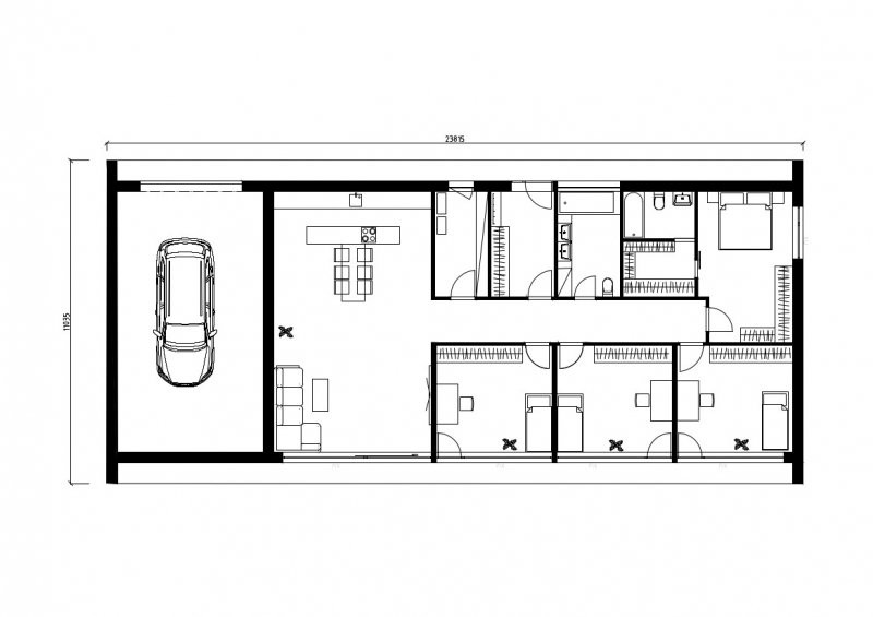
Světlo, vzduch, nádech, výdech... Prostor, který vás ohromí svojí plochou a nechá do každé ložnice vstoupit slunce. Dům je navržen pro velkou rodinu.
Společný prostor obývacího pokoje, kuchyně a jídelny a 3 hlavní ložnice disponují přímým vstupem do zahrady. Celému domu dominuje prosklená fasáda, která domu dodává pocit světla a přísunu čerstvého vzduchu. Hlavní ložnice je naopak orientována do klidnější části zahrady a doplněna o samostatnou koupelnu a šatnu.
Dům je zcela zasazen do konceptu přírody, kdy zelená střecha navodí oku lahodící pocit, ale umístěná fotovoltaika poskytne efektivní využití moderních technologií v domácnosti. Pokud jste milovníky výhledu do krajiny a velkých světlých místností, tento dům je Vám šitý na míru.












Čerstvé novinky ze světa dřevostaveb