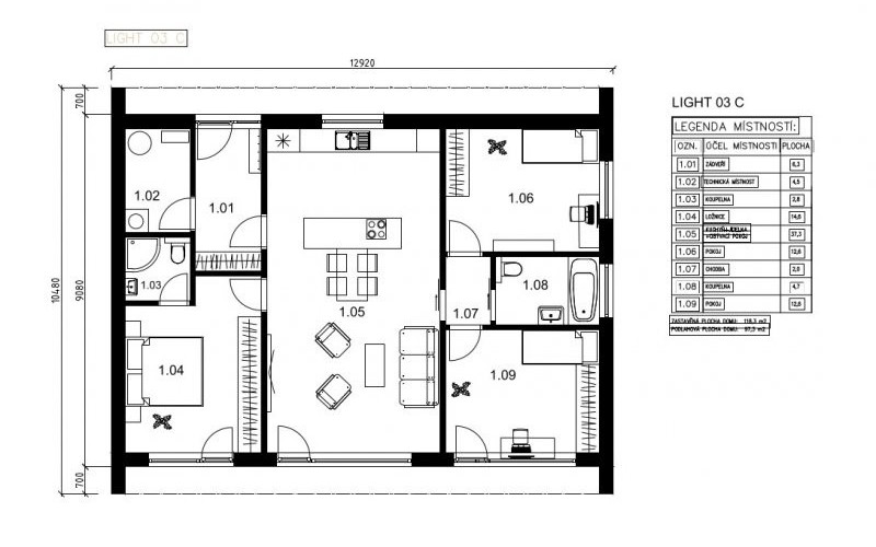
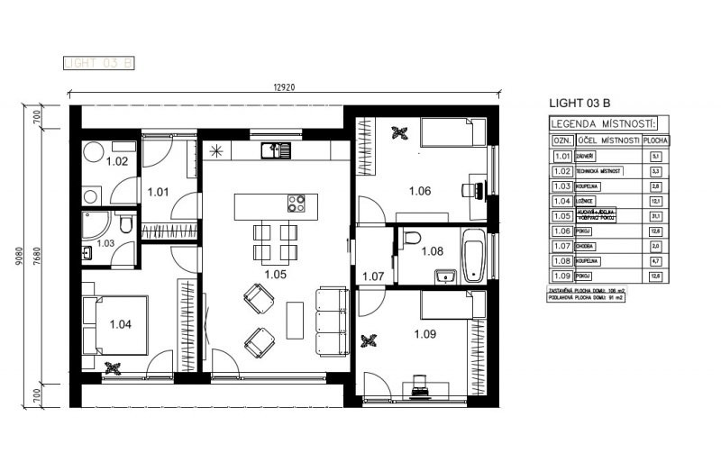
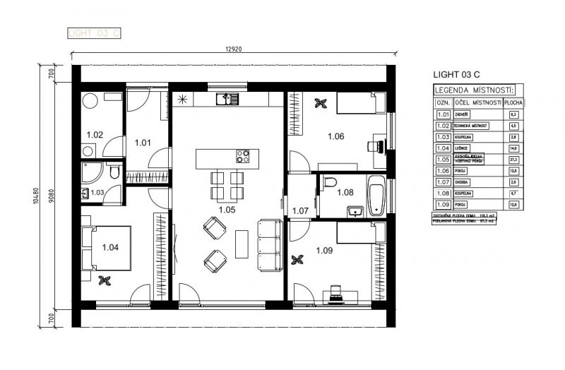
Třetí dům z řady LIGHT s podlahovou plochou 85m2 až 97,3m2 vytvoří ideální domov menší rodině nebo jednotlivci. Dispozice 3+kk nebo 4+kk je elegantně rozčleněná do dvou pomyslných částí.
Levá část, při pohledu z jihu, náleží pánům domu. Dominantou této části je hlavní ložnice s přímým vstupem do zahrady. Na ložnici přímo navazuje průchozí šatna a koupelna s toaletou.
Pravou část domu tvoří pokoj, druhá koupelna s toaletou a technická místnost. Koupelna sice není přístupná rovnou z pokoje, ale přímo s ním sousedí, takže komfort obyvatele je zajištěn.
Obě části spojuje, jak je pro naše domy typické, kuchyň s jídelnou a obývacím pokojem o velkorysé výměře 31,5 m2. Francouzské okno vpouští do místnosti dostatek světla a zprostředkovává příjemný pohled do zeleně za každého počasí.
Zvenku dům zaujme svým nadčasovým designem a zajímavým detailem na jižní fasádě.








Čerstvé novinky ze světa dřevostaveb