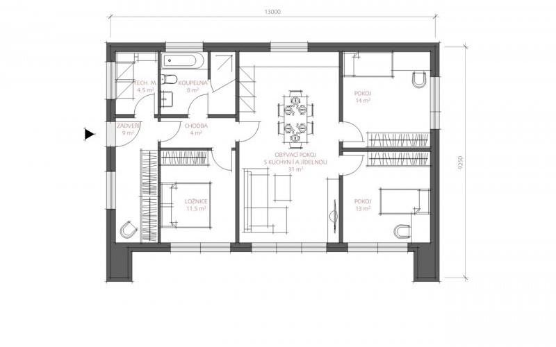
Moderní, jednopodlažní dřevostavba na klíč s plochu střechou. Tato dřevostavba je určená pro čtyřčlennou rodinu. Středobodem domu je obývací pokoj s kuchyní a jídelnou. Z jedné strany sousedí se dvěma dětskými pokoji, z druhé pak s ložnicí, koupelnou a wc. Vstup je od chodby oddělen zádveřím, vedle něhož se nachází technická místnost. Na přání zákazníka je možná změna dispozice - ZDARMA.
LUCERN 107 - dřevostavba na klíč
Dodavatel:
LUCERN dřevostavby s.r.o.
Parametry projektu LUCERN 107 - dřevostavba na klíč
| Společnost | LUCERN dřevostavby s.r.o. |
| Charakteristika domu | samostatný |
| Počet podlaží | Jednopodlažní |
| Generačnost | Jednogenerační |
| Konstrukční systém | Skeletový |
| Podlahová plocha (užitná) | 92,5 m2 |
| Zastavěná plocha | 107 m2 |
| Dispozice | 4+kk/4+1 |
| Místnost navíc | Technická místnost |
| Cena hrubé stavby (vč. DPH) | 3 040 000,00 Kč |
| Cena dřevostavby na klíč (vč. DPH) | 4 560 000,00 Kč |







Čerstvé novinky ze světa dřevostaveb