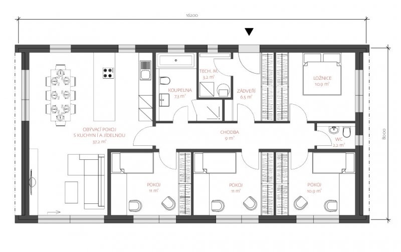
Moderní typový dům LUCERN 125 je určen pro příznivce jednopodlažního bydlení. Přízemní dům se sedlovou střechou jsou určen ideálně pro čtyřčlennou rodinu.
Samozřejmostí tohoto typového domu jsou vysoké standardy, jako je například teplovodní podlahové vytápění REHAU, plastová okna v oboustranném dekoru s izolačním trojsklem a mnoho dalších.
Cena domu je včetně základové desky i 15% DPH.






Čerstvé novinky ze světa dřevostaveb