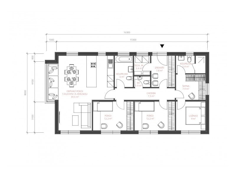
Typový dům LUCERN 127 patří mezi našimi klienty k nejoblíbenějším domům. Jedná se o klasickou moderní dřevostavbu, která působí velice moderním způsobem. Zapadne do každé zástavby a většinou splní všechny regulativy obcí. Vnitřní dispozice domu se dá upravovat dle potřeb klienta - 4+kk, kde mají rodiče svůj vlastní blok - ložnice-šatna-koupelna, popřípadě početnější rodina zvolí variantu 5+kk, kde pátý pokoj slouží jako pracovna, popřípadě pokoj pro hosty. Klienti u tohoto domu oceňují zejména velké prosklení všech pokojů směrem do zahrady a v neposlední řadě chytře řešený „L" obývací pokoj s kuchyní, kde naleznete sedací výklenek. Celý prostor působí velmi velkorysým dojmem.
LUCERN 127 - dřevostavba na klíč
Dodavatel:
LUCERN dřevostavby s.r.o.
Parametry projektu LUCERN 127 - dřevostavba na klíč
| Společnost | LUCERN dřevostavby s.r.o. |
| Charakteristika domu | samostatný |
| Počet podlaží | Jednopodlažní |
| Generačnost | Jednogenerační |
| Konstrukční systém | Skeletový |
| Podlahová plocha (užitná) | 112,7 m2 |
| Zastavěná plocha | 127 m2 |
| Cena hrubé stavby (vč. DPH) | 3 290 000,00 Kč |
| Cena dřevostavby na klíč (vč. DPH) | 4 990 000,00 Kč |






Čerstvé novinky ze světa dřevostaveb