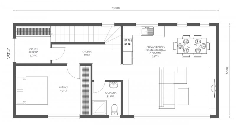
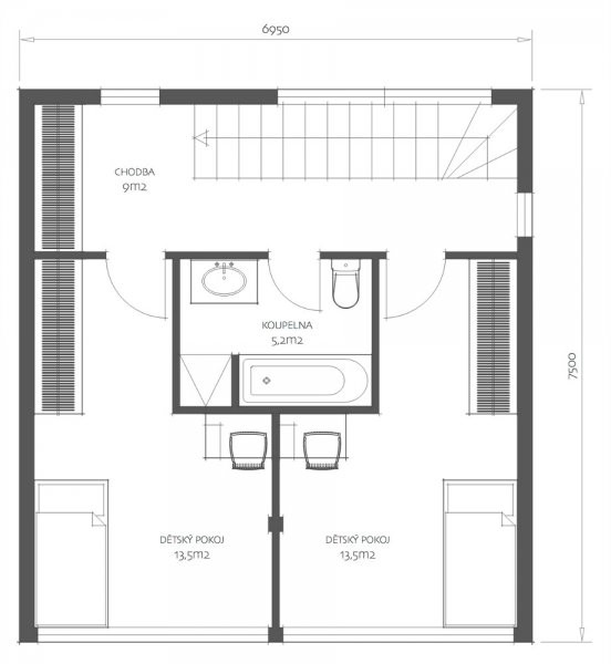
Moderní, dvoupodlažní dřevostavba na klíč s chytře vymyšlenou dispozicí. Tato dřevostavba na klíč je určená pro čtyrčlenou rodinu. V prvním patře domu se nachází obývací pokoj, kuchyň s jídelním koutem a velká ložnice s vestavěnou skříní. Ve druhém patře se nachází dva stejnoměrně rozložené dětské pokoje s koupelnou. Na přání zákazníka je možná změna dispozice - ZDARMA.
LUCERN 132 - dřevostavba na klíč
Dodavatel:
LUCERN dřevostavby s.r.o.
- Doporučené
Parametry projektu LUCERN 132 - dřevostavba na klíč
| Společnost | LUCERN dřevostavby s.r.o. |
| Charakteristika domu | samostatný |
| Počet podlaží | Vícepodlažní |
| Generačnost | Jednogenerační |
| Konstrukční systém | Skeletový |
| Podlahová plocha (užitná) | 108,9 m2 |
| Zastavěná plocha | 78 m2 |
| Dispozice | 4+kk/4+1 |
| Cena hrubé stavby (vč. DPH) | 3 730 000,00 Kč |
| Cena dřevostavby na klíč (vč. DPH) | 5 630 000,00 Kč |







Čerstvé novinky ze světa dřevostaveb