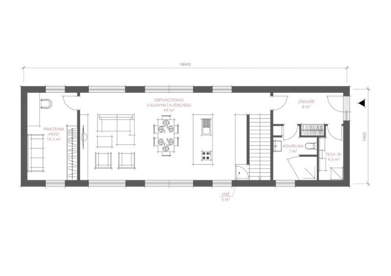
Moderní, dvoupodlažní dřevostavba na klíč s plochou střechou určený pro čtyřčlennou rodinu. V prvním patře této dřevostavby naleznete prostorný obývací pokoj s kuchyní a jídelnou, který sousedí s pracovnou / pokojem pro hosty. Ve druhém patře se nachází dva stejnoměrně rozložené dětské pokoje a prostornější ložnice. Na přání zákazníka je možná změna dispozice - ZDARMA.
LUCERN 176 - dřevostavba na klíč
Dodavatel:
LUCERN dřevostavby s.r.o.
Parametry projektu LUCERN 176 - dřevostavba na klíč
| Společnost | LUCERN dřevostavby s.r.o. |
| Charakteristika domu | samostatný |
| Počet podlaží | Vícepodlažní |
| Generačnost | Jednogenerační |
| Konstrukční systém | Skeletový |
| Podlahová plocha (užitná) | 150 m2 |
| Zastavěná plocha | 100 m2 |
| Dispozice | 5+kk/5+1 |
| Místnost navíc | Technická místnost |
| Cena hrubé stavby (vč. DPH) | 4 620 000,00 Kč |
| Cena dřevostavby na klíč (vč. DPH) | 6 540 000,00 Kč |







Čerstvé novinky ze světa dřevostaveb