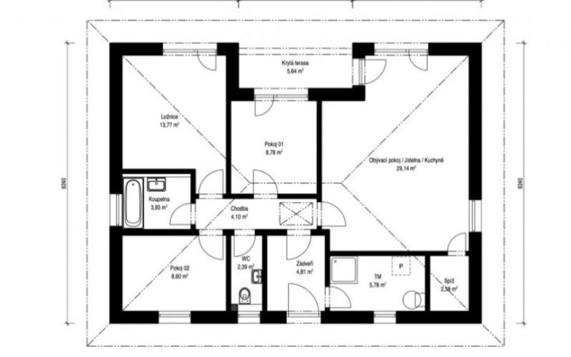
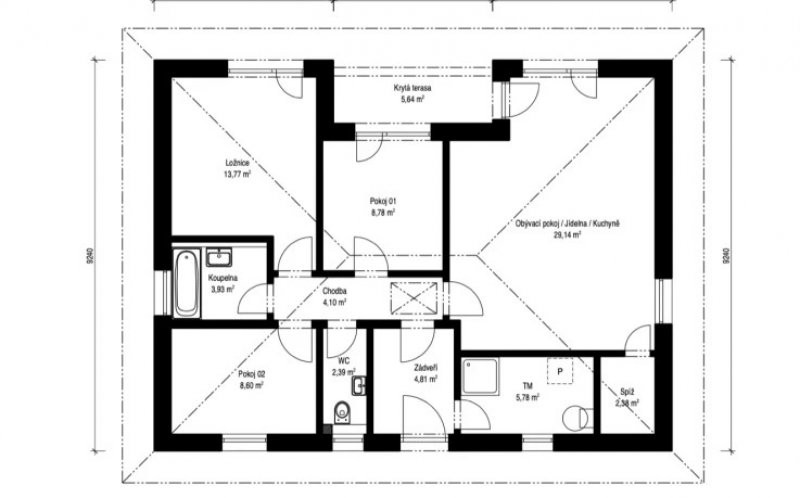
V bungalovu Lucky 1-84 je prostor o rozloze 84 m2 šikovně rozčleněn do tří ložnic, koupelny, WC, skladu a obývacího pokoje s kuchyní. Prostorná terasa prosvětlující obývací prostor je částečně zapuštěna do střední části domu, kterému tím dává tvar písmene "U".
Lucky 1-84 - dřevostavba na klíč
Dodavatel:
Haas Fertigbau s.r.o.
Parametry projektu Lucky 1-84 - dřevostavba na klíč
| Společnost | Haas Fertigbau s.r.o. |
| Web | www.haas-fertigbau.cz/drevostavby/lucky-1-84 |
| Charakteristika domu | samostatný |
| Počet podlaží | Jednopodlažní |
| Generačnost | Jednogenerační |
| Konstrukční systém | Panelový |
| Podlahová plocha (užitná) | 83,68 m2 |
| Zastavěná plocha | 113,1 m2 |
| Dispozice | 4+kk/4+1 |
| Cena hrubé stavby (vč. DPH) | 3 360 000,00 Kč |
| Cena dřevostavby na klíč (vč. DPH) | 5 217 000,00 Kč |







Čerstvé novinky ze světa dřevostaveb