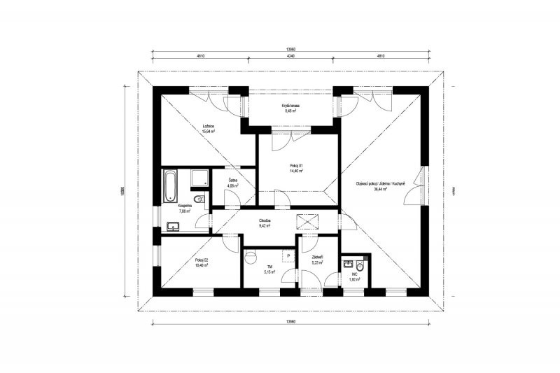
Bungalov Lucky 2-110 má užitnou plochu 110 m2, která v sobě skrývá šikovně řešené členění na 3 ložnice, koupelnu s WC, samostatné WC, šatnu, technickou místnost a prostorný obývací pokoj s kuchyňským koutem, vyústěným v polozakrytou venkovní terasu.
Lucky 2-110 - dřevostavba na klíč
Dodavatel:
Haas Fertigbau s.r.o.
Parametry projektu Lucky 2-110 - dřevostavba na klíč
| Společnost | Haas Fertigbau s.r.o. |
| Web | www.haas-fertigbau.cz/drevostavby/lucky-2-110 |
| Charakteristika domu | samostatný |
| Počet podlaží | Jednopodlažní |
| Generačnost | Jednogenerační |
| Konstrukční systém | Panelový |
| Podlahová plocha (užitná) | 109,76 m2 |
| Zastavěná plocha | 146,36 m2 |
| Dispozice | 4+kk/4+1 |
| Cena hrubé stavby (vč. DPH) | 4 150 000,00 Kč |
| Cena dřevostavby na klíč (vč. DPH) | 6 255 000,00 Kč |







Čerstvé novinky ze světa dřevostaveb