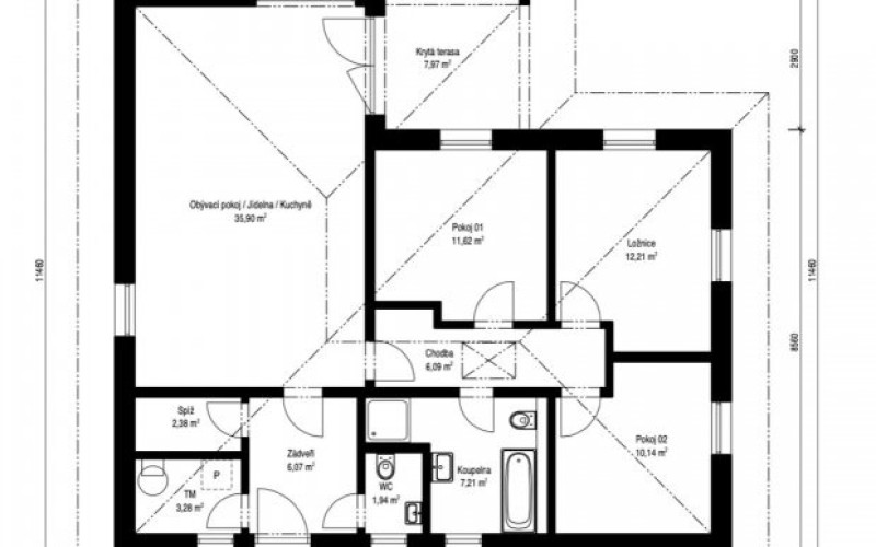
Prostorný bungalov Madera 2-97 s půdorysem ve tvaru písmene L. Rodinný dům s velkorysou společenskou a oddělenou intimní zónou s dostatkem úložných prostor. Jistě si oblíbíte terasu, která může být zcela či částečně zastřešená.
Madera 2-97 - dřevostavba na klíč
Dodavatel:
Haas Fertigbau s.r.o.
Parametry projektu Madera 2-97 - dřevostavba na klíč
| Společnost | Haas Fertigbau s.r.o. |
| Web | www.haas-fertigbau.cz/drevostavby/madera-2-97 |
| Charakteristika domu | samostatný |
| Počet podlaží | Jednopodlažní |
| Generačnost | Jednogenerační |
| Konstrukční systém | Panelový |
| Podlahová plocha (užitná) | 96,84 m2 |
| Zastavěná plocha | 130,46 m2 |
| Dispozice | 4+kk/4+1 |
| Cena hrubé stavby (vč. DPH) | 3 730 000,00 Kč |
| Cena dřevostavby na klíč (vč. DPH) | 5 698 000,00 Kč |









Čerstvé novinky ze světa dřevostaveb