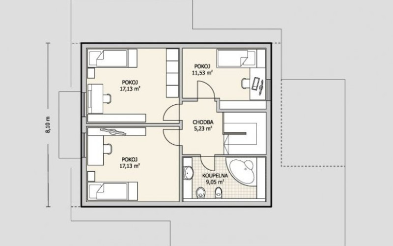
Dřevostavba na klíč, která představuje střední třídu bydlení v ČR. Může být doplněna střešními vikýři a balkonem.
Stavíme dřevostavby na klíč nejen z našeho katalogu, ale také dle individuálního přání našeho klienta.
Díky našim kontaktům nabízíme našim klientům tzv. služby od A po Z. Pomáháme se zprostředkováním pozemku, či prodeje bytu, s realizací a stavbou dřevostavby, můžeme doporučit a zprostředkovat dodavatele podlah a jiného vybavení domu jako např. kuchyňské linky atd.




Čerstvé novinky ze světa dřevostaveb