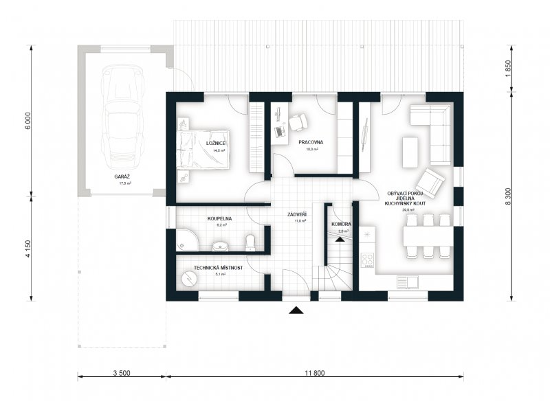
Krásná pětipokojová dřevostavba na klíč, která vyhovuje zejména zájemcům s širším a méně hlubokým pozemkem.
Tuto dřevostavbu lze realizovat i jako dvojdům.
Stavíme dřevostavby nejen z našeho katalogu, ale také dle individuálního přání našeho klienta.
Díky našim kontaktům nabízíme našim klientům tzv. služby od A po Z. Pomáháme se zprostředkováním pozemku, či prodeje bytu, s realizací a stavbou dřevostavby, můžeme doporučit a zprostředkovat dodavatele podlah a jiného vybavení domu jako např. kuchyňské linky atd.







Čerstvé novinky ze světa dřevostaveb