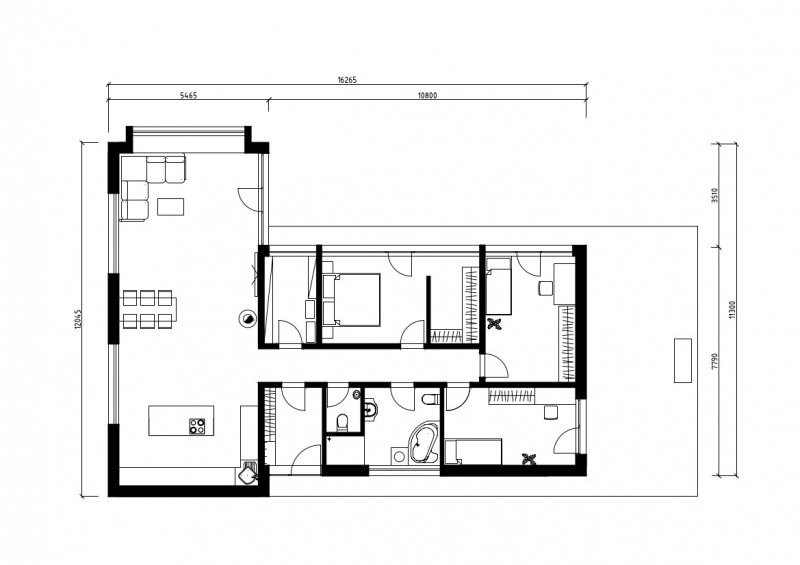
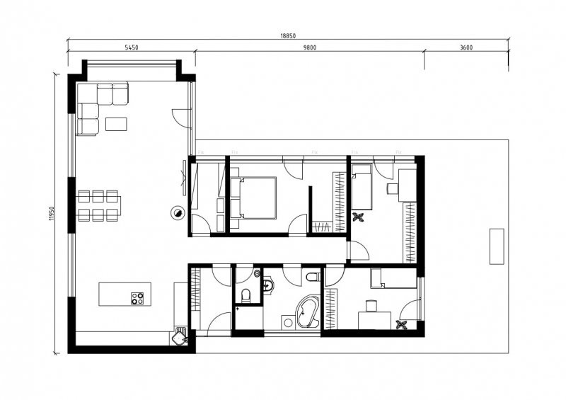
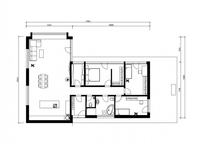
Na první pohled moderní architektura, světlo a prostor. Dům pro tříčlennou rodinu, který respektuje společenský prostor a odděluje osobní potřeby. I přes to, že je dům typu bungalov, po vstupu se vydáte buď doleva do velkorysého společenské prostoru nebo doprava do ložnicové části domu. Společný prostor překvapí hned několikrát. Ohromí vás výška stropu, která dodá jídelně, kuchyni a obývacímu pokoji na velikosti. Pocit nekonečné výšky podporuje vnímáni velikosti propojených místností. Atmosféru podtrhne předsazené okno, které láká k šálku kávy či čaje a odpočinku.
Součástí domu je pak prostorná hlavní ložnice s přiléhající šatnou, ze které vstupujete přímo na terasu a zahradu. Další dvě ložnice a prostorná koupelna dělají dům domovem.















Čerstvé novinky ze světa dřevostaveb