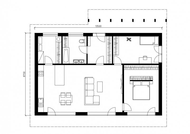
Atypičnost moderních architektonických prvků dodává domu šmrnc. Představuje domov menší rodině či páru, který uctívá design a cítí se dobře v netradičním prostředí. Pultová střecha dodá domu vzdušnost a podpoří vnímání velikosti prostoru. Vstup na zahradu je pohodlně umožněn jak ze společného prostoru kuchyně, jídelny a obývacího pokoje, ale také z hlavní ložnice, odkud si hned ráno můžete vychutnat výhled do zahrady. Druhá ložnice, prostorná koupelna a velká technická místnost dodá domu vše, co potřebujete pro pohodlné a spokojené bydlení.
MOOD 02 - dřevostavba na klíč
Dodavatel:
GOOPAN
Parametry projektu MOOD 02 - dřevostavba na klíč
| Společnost | GOOPAN |
| Charakteristika domu | samostatný |
| Počet podlaží | Jednopodlažní |
| Generačnost | Jednogenerační |
| Konstrukční systém | Panelový |
| Podlahová plocha (užitná) | 103 m2 |
| Dispozice | 3+kk/3+1 |










Čerstvé novinky ze světa dřevostaveb