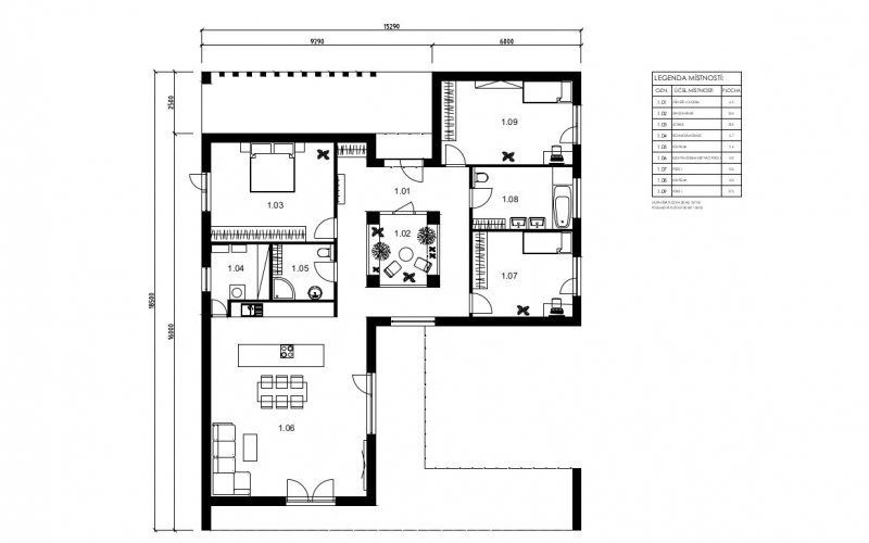
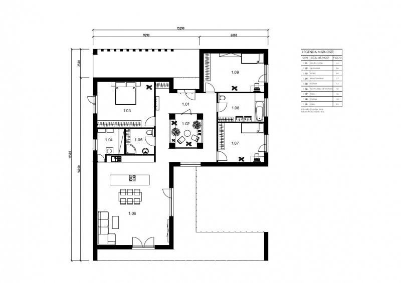
Dům, který je naplněn nevšední atmosférou vám rozhodně dodá pocit výjimečnosti. Ideálním domovem bude pro náročné klienty, kteří hledají pohodlí, praktičnost, vzdušnost, design a atraktivitu. To vše MOOD 03 s jistotou nabízí.
Prostornou společenskou místnost a tři ložnice doplní dvě koupelny a technická místnost. Netradiční dominantou domu je prosklená relaxační místnost, využitelná dle vaší libosti, třeba jako zimní zahrada nebo ateliér. Mladistvě řešený exteriér s designovými prvky a velkou terasou bude jen třešničkou na dortu.








Čerstvé novinky ze světa dřevostaveb