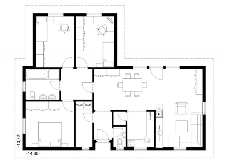
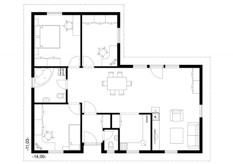
U této dřevostavby na klíč jsou všechny obytné funkce soustředěny do přízemí a orientovány do obytné zahrady. Dřevostavba nepředpokládá podkroví, i když je za příplatek možné. Varianty lze též podsklepit. Dispozice této dřevostavby je postavena na velkém obývacím prostoru se vstupní částí se stolováním a s částí odpočinkovou. Na jídelní část přímo navazuje oddělitelná kuchyň, ze které je přístup do spíže. Pokud je dům nepodsklepen a ani se nepočítá s využitím podkroví, je možno pokoj u vstupu zvětšit o prostor schodiště, případně jej vybavit samostatným vstupem. Pak je možno jej používat např. jako oddělenou kancelář.
MS 100a - dřevostavba na klíč
Dodavatel:
MS HAUS s.r.o.
Parametry projektu MS 100a - dřevostavba na klíč
| Společnost | MS HAUS s.r.o. |
| Charakteristika domu | samostatný |
| Počet podlaží | Jednopodlažní |
| Generačnost | Jednogenerační |
| Konstrukční systém | Panelový |
| Podlahová plocha (užitná) | 104 m2 |
| Zastavěná plocha | 126 m2 |
| Dispozice | 4+kk/4+1 |
| Cena hrubé stavby (vč. DPH) | 2 220 305,00 Kč |
| Cena dřevostavby na klíč (vč. DPH) | 4 428 075,00 Kč |












Čerstvé novinky ze světa dřevostaveb