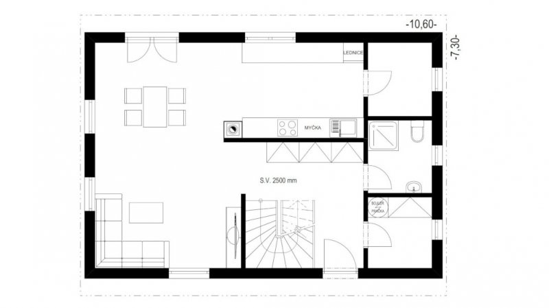
Dřevostavba na klíč s velmi úsporným půdorysným řešením s maximálně využitelným podkrovím. Dispoziční řešení této dřevostavby umožňuje variabilní osazení na pozemku ve vztahu ke světovým stranám. Minimální výška podkrovních místností je 120 cm, což umožňuje plné využití podlahové plochy. Samozřejmostí je balkon a propojení obytných prostor přes terasu se zahradou, dům je určen pro čtyř- až pětičlennou rodinu, ve variantě až šestičlennou. Tato dřevostavba na klíč je nízkoenergetická. Konstrukční řešení je navrženo tak, aby umožňovalo širokou paletu změn. Kuchyň v přízemí je možno oddělit, na úkor velkého obývacího pokoje je možno zřídit pokoj pro hosty vč. malé koupelny. Dům je možno zpestřit arkýřem či zimní zahradou. Jeho funkčnost lze doplnit carportem či garáží. Další z dřevostaveb na klíč od společnosti MS HAUS s velmi příznivou cenou do 3 milionů korun.
MS 110a - dřevostavba na klíč
Dodavatel:
MS HAUS s.r.o.
Parametry projektu MS 110a - dřevostavba na klíč
| Společnost | MS HAUS s.r.o. |
| Charakteristika domu | samostatný |
| Počet podlaží | Vícepodlažní |
| Generačnost | Jednogenerační |
| Konstrukční systém | Panelový |
| Podlahová plocha (užitná) | 122 m2 |
| Zastavěná plocha | 77 m2 |
| Tvar střechy | sedlová |
| Dispozice | 5+kk/5+1 |
| Cena hrubé stavby (vč. DPH) | 2 390 045,00 Kč |
| Cena dřevostavby na klíč (vč. DPH) | 4 523 870,00 Kč |










Čerstvé novinky ze světa dřevostaveb