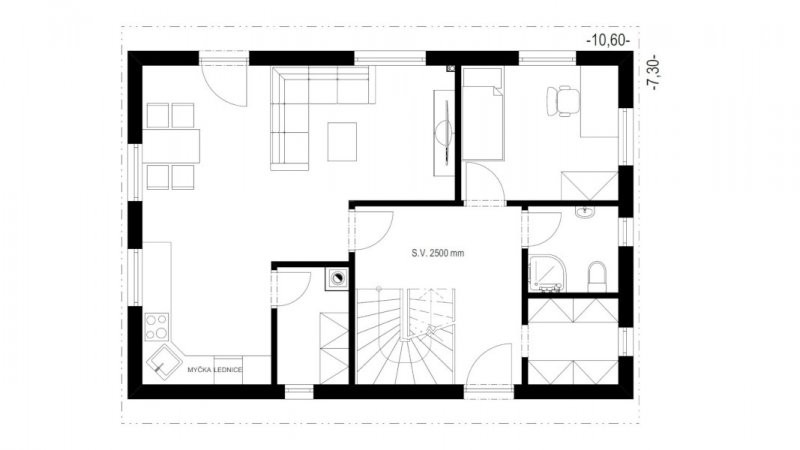
Dřevostavba na klíč MS 110 je nejprodávanějším domem z nabídky firmy MS HAUS s.r.o. Její úspěch je založen na velmi úsporném půdorysném řešení s maximálně využitelným podkrovím. Dispoziční řešení umožňuje variabilní osazení na pozemku ve vztahu ke světovým stranám. Přes poměrně malou zastavěnou plochu disponuje v přízemí velkým obývacím pokojem, kde skloubit funkce odpočinku, rodinné pohody v návaznosti s funkcemi vaření a stolování, kdy rodina může být pohromadě i s vařící matkou. V podkroví této řevostavby na klíč, kde mají všechny místnosti z části zkosený strop, jsou umístěny tři ložnice, odkládací prostor, šatna a velká koupelna. Minimální výška místnosti je 120 cm, což umožňuje plné využití podlahové plochy. Samozřejmostí je balkon a propojení obytných prostor přes terasu se zahradou, Dřevostavba je určena pro čtyř- až pětičlennou rodinu, ve variantě až šestičlennou, které zaručuje kvalitní bydlení za optimální cenu kolem třech milionů korun za dřevostavbu na klíč.
Konstrukční řešení dřevostavby na klíč je navrženo tak, aby umožňovalo širokou paletu změn. Kuchyň v přízemí je možno oddělit, na úkor velkého obývacího pokoje je možno zřídit pokoj pro hosty vč. malé koupelny. Dům je možno zpestřit arkýřem či zimní zahradou. Jeho funkčnost lze doplnit carportem či garáží. To jsou varianty, se kterými se můžete seznámit při prohlídce našeho vzorového domu.
I zde platí samozřejmost použití nejkvalitnějších materiálů, které splňují i ta nejnáročnější ekologická i hygienická hlediska. Jedná se o dřevostavbu s velmi nízkou energetickou náročností a splňuje kriteria stanovená dle německých předpisů pro nízkoenergetickou dřevostavbu.
Všechny dřevostavby společnosti MS Haus s.r.o. lze dispozičně dále upravovat dle požadavku klienta. Příkladem je posunutí stěn, posunutí, či přesunutí okna či dveří na jinou fasádu. Další zajímavou možností je změna sklonu nebo rovnou změna tvaru a typu střechy, či krytiny. Dále je možné zlepšení tepelně technických vlastností domů až na hodnoty doporučené pro pasivní domy. Změna druhu vytápění je také samozřejmostí!









Čerstvé novinky ze světa dřevostaveb