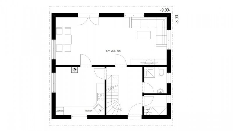
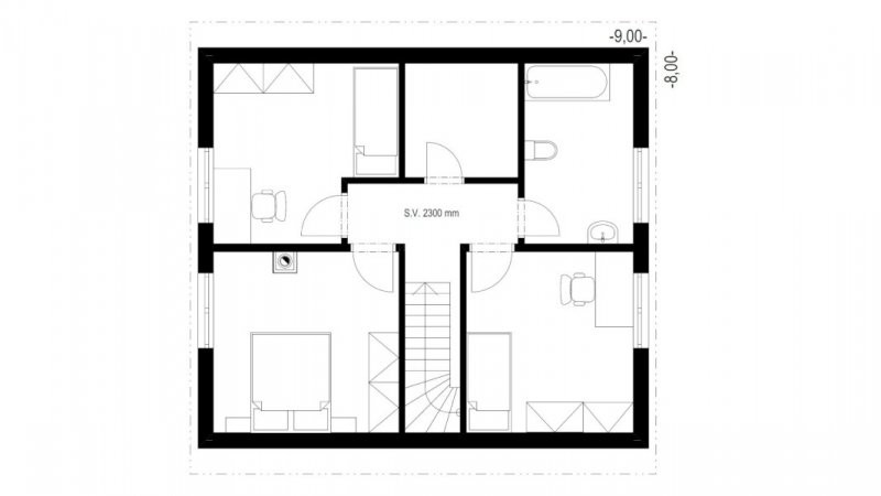
Typová řada domů MS 120 vychází z přání německých zákazníků. Jedná se o velmi líbivé řešení s takřka čtvercovým půdorysem. Dispozice domu je 4 + 1 s obytnou plochou 117 m2. Přízemí zahrnuje kuchyň, velký obývací pokoj s možností instalace krbu či krbových kamen, koupelnu a technickou místnost. V podkroví jsou umístěny tři dostatečně velké pokoje, koupelna, která uspokojí velikostí i náročného zákazníka a odkládací prostor.
Varianty rodinného domu MS 120 je také možno za příplatek postavit včetně garáže a odkládacího prostoru k uskladnění zahradní techniky nebo dílny. Obě varianty umožňují velmi pohodlné bydlení pro až pěti - i šesti člennou rodinu. Obývací pokoj a na přání i kuchyň umožňuje přímé propojení s přírodou.
U obou variant je také možné zvolit typ střechy dle požadavku investora nebo stavebního úřadu jako sedlovou respektive polovalbovou střechu.
Všechny domy společnosti MS Haus s.r.o. lze dispozičně dále upravovat dle požadavku klienta. Příkladem je posunutí stěn, posunutí, či přesunutí okna či dveří na jinou fasádu. Další zajímavou možností je změna sklonu nebo rovnou změna tvaru a typu střechy, či krytiny. Dále je možné zlepšení tepelně technických vlastností domů až na hodnoty doporučené pro pasivní domy. Změna druhu vytápění je také samozřejmostí!











Čerstvé novinky ze světa dřevostaveb