Dřevostavba na klíč MS 13 Ekonomy je dům, který splňuje všechny parametry domu v pasivním energetickém standardu. Tato dřevostavba byla speciálně navržena pro velmi úzké parcely, kde bez žádosti o výjimku je možno stavět na parcele šíře již od 12,5 m a proto je svým tvarem a dispozicí vhodná nejen do městské zástavby, ale také všude tam, kde je nedostatek prostoru. Je to prostorná dřevostavba pro 3-4 osoby, který zabírá velmi malou zastavěnou plochu.
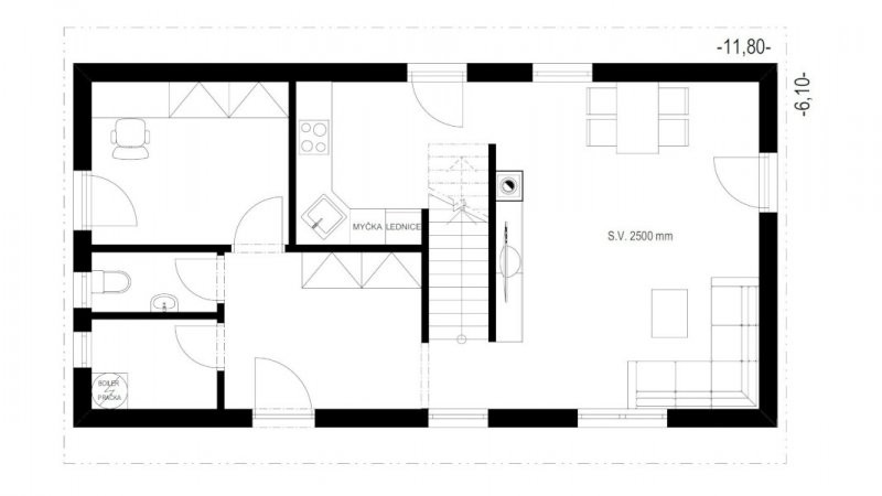
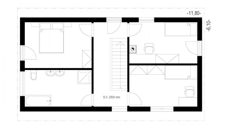
Dispozice je klasická 5 + kk ve dvou podlažích se zajímavým průhledem z galerie, užitná plocha domu je 114 m2. Za příplatek je také možné dům prodloužit.
K vytápění této dřevostavby se předpokládá teplovzdušné vytápění s rekuperací odpadního tepla s účinností min. 85%. Dalšího komfortu bydlení s efektem snížení nákladů na bydlení může být dosaženo vybavením domu komínem s krbovou vložkou.
Přízemí této dřevostavby na klíč tvoří moderně otevřený prostor obývacího pokoje spojeného s jídelnou a kuchyňským koutem, který volně navazuje na zádveří. Dále se v přízemí nachází technická místnost, WC a pracovna. V patře jsou k dispozici dva pokoje, koupelna a šatna.
Všechny dřevostavby společnosti MS Haus s.r.o. lze dispozičně dále upravovat dle požadavku klienta. Příkladem je posunutí stěn, posunutí, či přesunutí okna či dveří na jinou fasádu. Další zajímavou možností je změna sklonu nebo rovnou změna tvaru a typu střechy, či krytiny.










Čerstvé novinky ze světa dřevostaveb