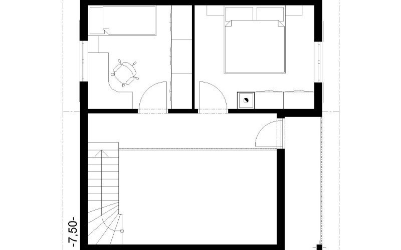
MS 50 Standard je původně navržen jako rekreační chata, může však velmi dobře sloužit i pro trvalé užívání. Dispozice objektu je 4 + kk o celkové užitné ploše 71 m2. Svojí zastavěnou plochou pouhých 54 m2 se dům velmi hodí do malých zahrádek a pozemků. Svojí nepravidelnou sedlovou střechou získává dům velmi sympatické a netradiční vzezření. V přízemí domku se nachází obytná místnost sloužící jako obývací pokoj s kuchyňským koutem a další samostatný pokoj, dále pak sociální zařízení. Po schodišti vedoucím na otevřenou galerii s balkonem jsou v patře přístupné další dvě samostatné místnosti.
Díky otevřené dispozici je možno po většinu topného období vytápět dům krbovými kamny a tím výrazně šetřit náklady na bydlení či rekreaci.








Čerstvé novinky ze světa dřevostaveb