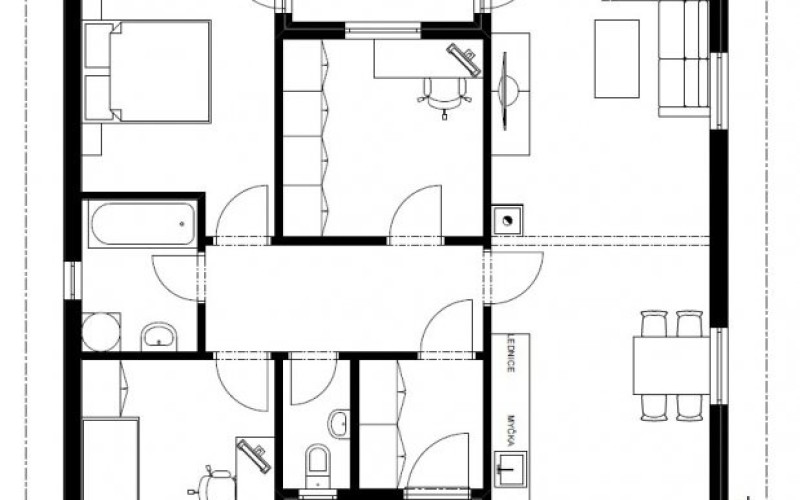
Dřevostavba na klíč MS 81 je navržena ve dvou dispozičních variantách se dvěma způsoby zastřešení, které je možno vzájemně kombinovat. Stejně tak lze tuto dřevostavbu provést ve standardu MS Ekonomy. V půdním prostoru je uvažován, stejně jako u většiny domů bez podkroví, úložný prostor pro sezónní věci.
MS 81a Standard - dřevostavba na klíč
Dodavatel:
MS HAUS s.r.o.
Parametry projektu MS 81a Standard - dřevostavba na klíč
| Společnost | MS HAUS s.r.o. |
| Charakteristika domu | samostatný |
| Počet podlaží | Jednopodlažní |
| Generačnost | Jednogenerační |
| Konstrukční systém | Panelový |
| Podlahová plocha (užitná) | 79 m2 |
| Zastavěná plocha | 98 m2 |
| Dispozice | 4+kk/4+1 |
| Cena hrubé stavby (vč. DPH) | 1 841 380,00 Kč |
| Cena dřevostavby na klíč (vč. DPH) | 3 700 355,00 Kč |










Čerstvé novinky ze světa dřevostaveb