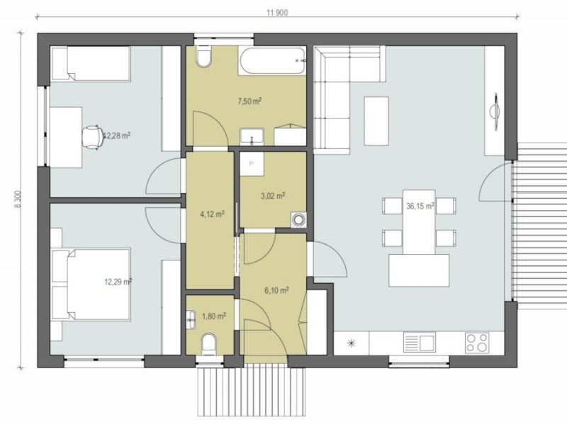
Cílem typového domu Optimal 04 je nabídnout možnost střechy nad hlavou především mladým lidem anebo naopak lidem v důchodovém věku, kteří uvažují o klidném bydlení v jednoduchém domku s jednoduchou údržbou a nízkými provozními náklady. Jedná se o volně stojící přízemní stavbu se sedlovou střechou. Dominantou domu jsou přiznané štítové stěny, které dotváří celkový moderní vzhled domu. Orientace vstupu jihovýchod, jih, jihozápad. V objektu se nachází zádveří se šatní skříní a vstupem na samostatné WC, jehož polohu oceníte především při práci na zahradě. Centrální technická místnost nabízí dostatek prostoru pro technické zázemí domu a umožňuje krátké rozvody všech instalací k příslušným spotřebičům. V zadní části domu jsou orientovány obytné místnosti, tj. ložnice a dětský pokoj/pokoj pro hosty. Třešničkou na dortu je pak prostorný obývací pokoj s jídelnou a kuchyní, z kterého je možný přímý vstup na terasu.
Optimal 04 - dřevostavba na klíč
Dodavatel:
PENATUS s.r.o.
Parametry projektu Optimal 04 - dřevostavba na klíč
| Společnost | PENATUS s.r.o. |
| Charakteristika domu | samostatný |
| Počet podlaží | Jednopodlažní |
| Generačnost | Jednogenerační |
| Konstrukční systém | Skeletový |
| Podlahová plocha (užitná) | 83,26 m2 |
| Zastavěná plocha | 98,77 m2 |
| Dispozice | 3+kk/3+1 |
| Cena dřevostavby na klíč (vč. DPH) | na vyžádání |





Čerstvé novinky ze světa dřevostaveb