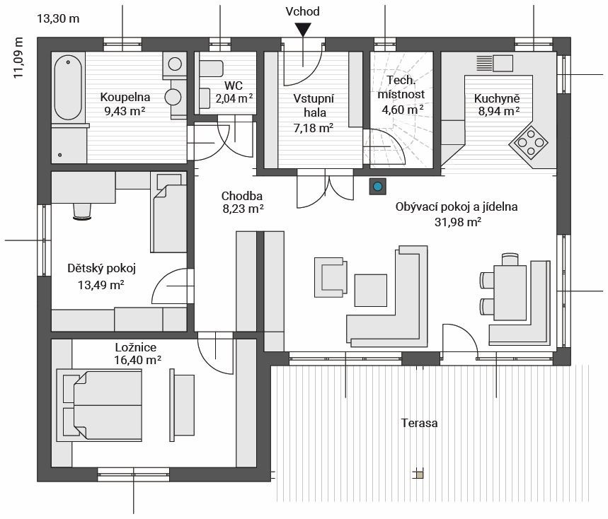
Planum 102 je elegantní a praktický bungalov ve tvaru písmene L, který nabízí promyšlenou dispozici 3+kk. Díky světlým a prostorným místnostem si zamilujete jeho vzdušnost a pohodlí.
Tento bungalov s užitnou plochou 102 m² a zastavěnou plochou 126 m² je perfektní volbou pro rodiny hledající moderní, energeticky úsporné bydlení s dostatkem prostoru uvnitř i venku. Uspořádání lze snadno přizpůsobit, například na 4+kk nebo 2+kk.
Díky svému jednoduchému, stylovému a variabilnímu designu je Planum 102 domem, který se přizpůsobí vašim potřebám i budoucím plánům. Díky absenci schodů je ideální nejen pro rodiny s malými dětmi, ale i pro seniory, kteří ocení bezbariérový přístup.




Čerstvé novinky ze světa dřevostaveb