Typická poloroubenka hodící se do horské a podhorské oblasti stejně jako do CHKO.
Poloroubenka Luka
Dodavatel:
Roman Střihavka - roubenky
Parametry projektu Poloroubenka Luka
| Společnost | Roman Střihavka - roubenky |
| Charakteristika domu | samostatný |
| Počet podlaží | Vícepodlažní |
| Generačnost | Jednogenerační |
| Konstrukční systém | Roubenky |
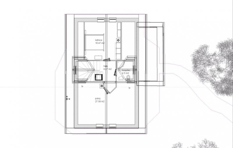
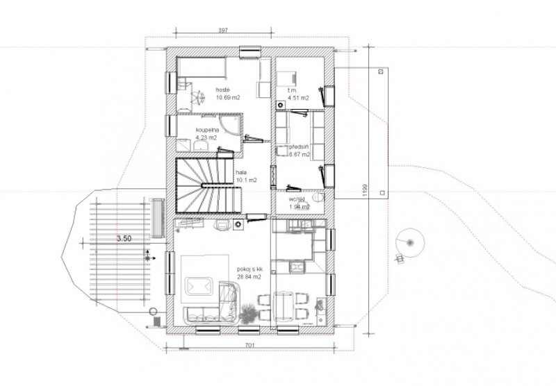
| Podlahová plocha (užitná) | 124,31 m2 |
| Zastavěná plocha | 67 m2 |
| Místnost navíc | Technická místnost |













Čerstvé novinky ze světa dřevostaveb