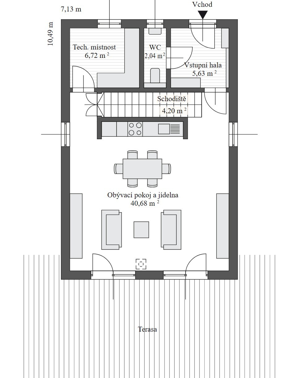
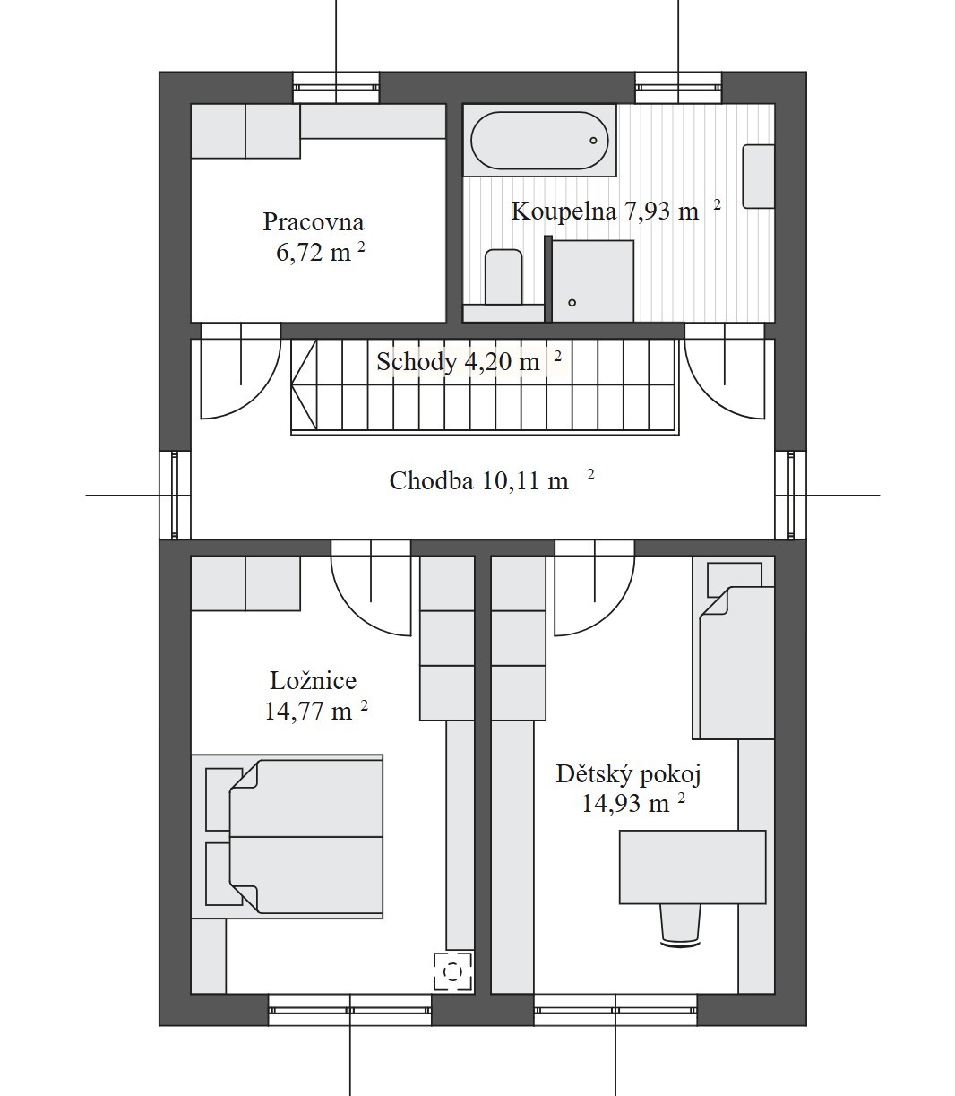
Primo 117 je moderní dvoupodlažní dům, který je zvenku kompaktní, ale uvnitř dostatečně prostorný a pohodlný pro rodinný život.
Tento dům byl navržen s ohledem na efektivní využití každého centimetru čtverečního, díky čemuž se perfektně hodí i na menší nebo úzké pozemky. Nadčasová architektura, minimalistický styl a možnost úpravy střechy z něj dělají ideální univerzální dům, který skvěle zapadne do jakékoli zástavby. Dům lze v případě potřeby snadno zvětšit.
Primo 117 kombinuje nadčasovou architekturu, funkčnost a dostupnost. Díky promyšlené dispozici je vhodný nejen pro rodiny, ale i pro jednotlivce či páry, které hledají kvalitní bydlení s nízkými provozními náklady.





Čerstvé novinky ze světa dřevostaveb