R10 - roubenka na klíč
Dodavatel:
OK PYRUS, s.r.o.
Parametry projektu R10 - roubenka na klíč
| Společnost | OK PYRUS, s.r.o. |
| Charakteristika domu | samostatný |
| Počet podlaží | Vícepodlažní |
| Generačnost | Jednogenerační |
| Konstrukční systém | Roubenky |
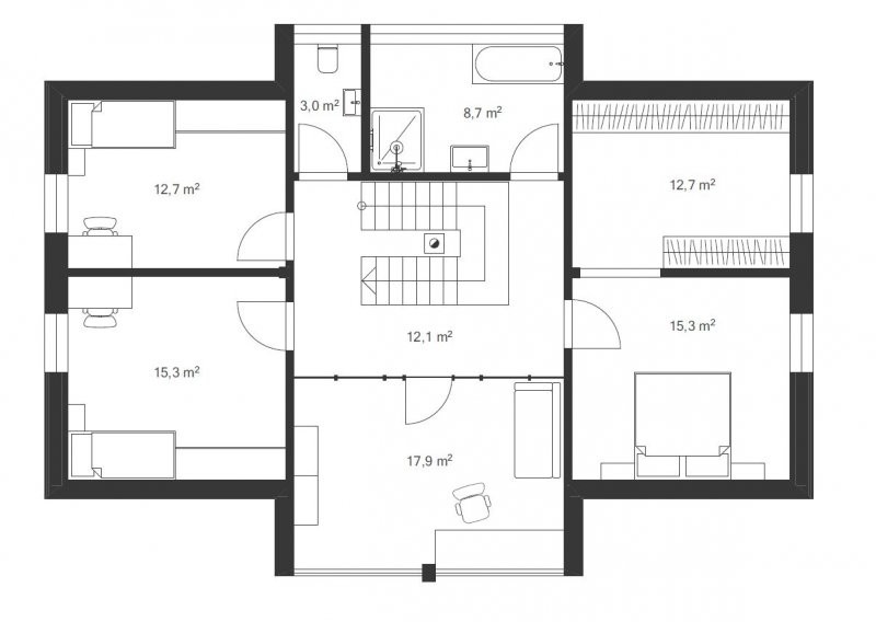
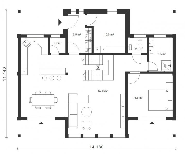
| Podlahová plocha (užitná) | 208 m2 |
| Zastavěná plocha | 163 m2 |
| Dispozice | Větší jak 5+1 |
| Cena hrubé stavby (vč. DPH) | 4 411 000,00 Kč |
| Cena dřevostavby na klíč (vč. DPH) | 7 967 000,00 Kč |





Čerstvé novinky ze světa dřevostaveb