R2 - roubenka na klíč
Dodavatel:
OK PYRUS, s.r.o.
Parametry projektu R2 - roubenka na klíč
| Společnost | OK PYRUS, s.r.o. |
| Charakteristika domu | samostatný |
| Počet podlaží | Jednopodlažní |
| Generačnost | Jednogenerační |
| Konstrukční systém | Roubenky |
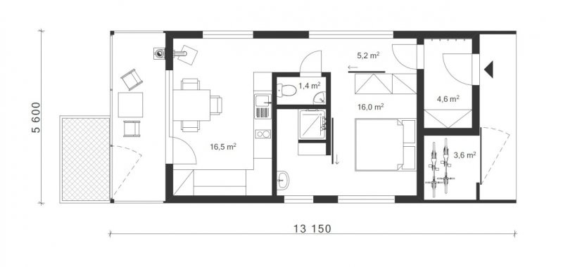
| Podlahová plocha (užitná) | 47 m2 |
| Zastavěná plocha | 74 m2 |
| Dispozice | 2+kk/2+1 |
| Cena hrubé stavby (vč. DPH) | 1 919 000,00 Kč |
| Cena dřevostavby na klíč (vč. DPH) | 3 397 000,00 Kč |




Čerstvé novinky ze světa dřevostaveb