Projektová dokumentace k domu ZDARMA.
RD 103 - dřevostavba na klíč
Dodavatel:
R domy s.r.o.
Parametry projektu RD 103 - dřevostavba na klíč
| Společnost | R domy s.r.o. |
| Charakteristika domu | samostatný |
| Počet podlaží | Jednopodlažní |
| Generačnost | Jednogenerační |
| Konstrukční systém | Skeletový |
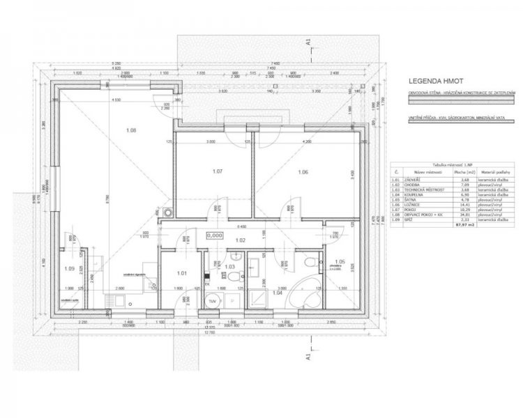
| Podlahová plocha (užitná) | 87,97 m2 |
| Zastavěná plocha | 120,65 m2 |
| Dispozice | 3+kk/3+1 |
| Cena hrubé stavby (vč. DPH) | 2 028 500,00 Kč |
| Cena dřevostavby na klíč (vč. DPH) | 3 402 800,00 Kč |



Čerstvé novinky ze světa dřevostaveb