Jak využít váš pozemek na maximum? Využijte vnitřní prostory co nejefektivněji! Vytvořili jsme pro vás patrový rodinný dům s podkrovím, které je plně využitelné bez omezení šikminami. A to rovnou ve dvou variantách. RD 170 K i jeho menší verze 126 K nabízí prostorné bydlení i na menší stavební ploše!
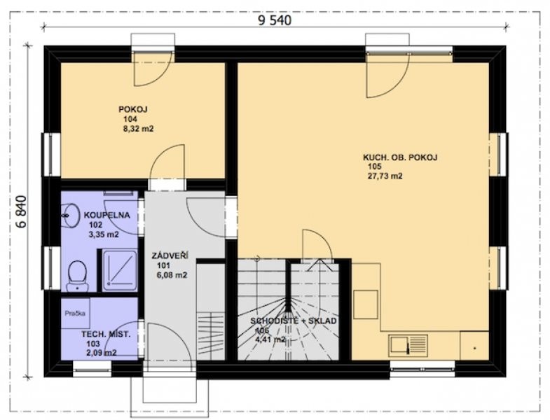
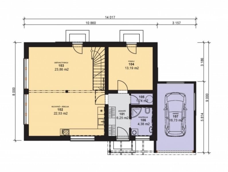
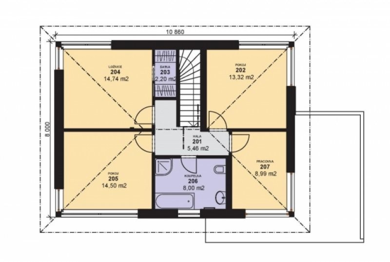
RD 170 K
Užitná plocha: 139,16 m2
Zastavěná plocha: 86 m2
Dispozice: 6+kk
Cena hrubé stavby (vč. DPH): 2 095 070 Kč


















Čerstvé novinky ze světa dřevostaveb