Jeden z nejoblíbenějších rodinných domů jsme pro vás ještě vylepšili.
Navrhli jsme dvě varianty, které i z menší stavební plochy udělají honosné sídlo. Pro vícečlennou rodinu je tento projekt ideálním řešením!
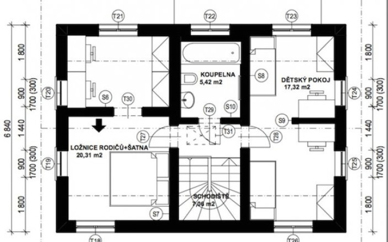
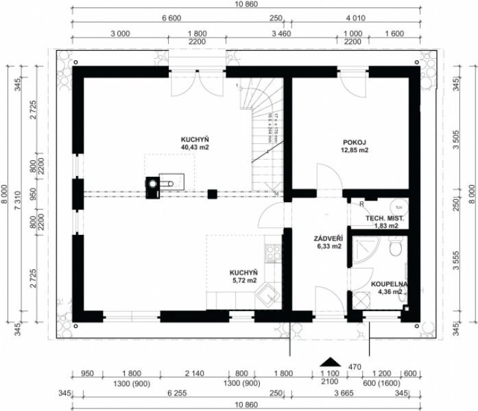
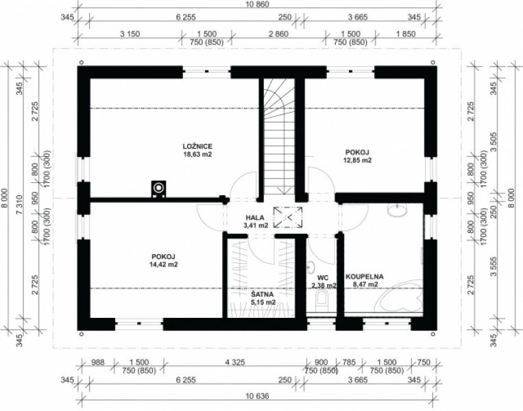
RD 170 V
Užitná plocha: 136,83 m2
Zastavěná plocha: 86.88 m2
Dispozice: 5+kk
Cena hrubé stavby (vč. DPH): 1 958 290 Kč















Čerstvé novinky ze světa dřevostaveb