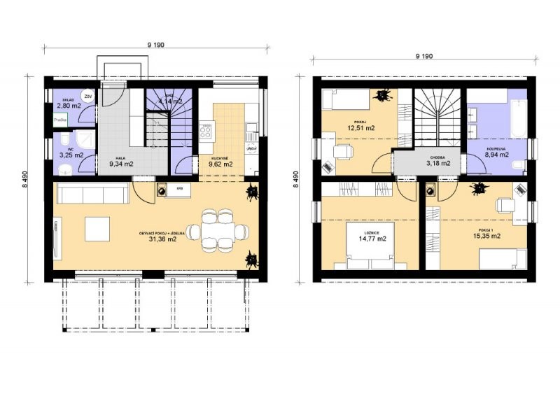
Velikost a dispoziční řešení dřevostavby RD 144 A vychází z prostorových požadavků na pohodlné bydlení 4-5 členné rodiny za velmi příjemnou cenu pod hranicí 3 mil Kč vč. základové desky. Dům je nadčasového designu s použitím moderních materiálů v nízkoenergetické konstrukci pro energeticky výhodný provoz dřevostavby. Velmi vhodné je dřevostavbu doplnit o řešení venkovní plochy formou terasy se zastřešením pergolou - pro příjemné propojení vnitřního a venkovního prostoru. Dřevostavba může být vybavena vzduchotechnikou s rekuperací a rovněž doporučujeme řešení zastínění prosklených ploch jako prevence proti nadbytku solární energie v interiéru.
Dřevostavba RD 144 A může být přizpůsobena individuálním požadavkům, tak aby splňovala vše, co si noví majitelé budou přát - např. dřevěný trámový strop v kombinaci s krbem promění interiér obývacího prostoru a dodá mu vřelou a příjemnou atmosféru.






Čerstvé novinky ze světa dřevostaveb