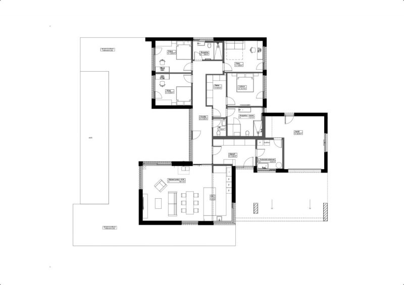
Návrh: BITTNERARCHITECTS, projekční práce: Libor Švehla, DiS., stavbyvedoucí: Michal Miklíček, Inteligentní dům se spoustou inovativních řešení. Návrh si přinesl klient, ale projekt zpracovala kompletně naše kancelář pod vedením Libora Švehly. Stavbu pod vedením Michala Miklíčka realizuje kompletně na klíč také naše společnost. Objekt RD obsahuje jedno podlaží. Při jižní straně domu se nachází krytý vstup, tento je přístupný stejně jako vjezd do garáže po betonové dlažbě vyspádované od domu.
Dispozice sestává ze zádveří, prostorné chodby, tří pokojů, koupelny, ložnice, šatny, koupelny se saunou, obývacího pokoje s kuchyňským koutem, samostatného wc, technické místnosti a garáže. Přes obytné prostory lze dále pokračovat na venkovní terasu.
Součástí stavby je také zapuštěný bazén 14,0 x 3,0 m, který je propojený s domem terasou z betonové dlažby.
![]()

















Čerstvé novinky ze světa dřevostaveb