RD Mnichovice
Dodavatel:
EKOPANELY SERVIS s.r.o.
Parametry projektu RD Mnichovice
| Společnost | EKOPANELY SERVIS s.r.o. |
| Charakteristika domu | samostatný |
| Počet podlaží | Vícepodlažní |
| Generačnost | Jednogenerační |
| Konstrukční systém | Skeletový |
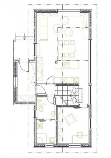
| Podlahová plocha (užitná) | 124,3 m2 |
| Zastavěná plocha | 93,3 m2 |
| Dispozice | 3+kk/3+1 |
Popis projektu RD Mnichovice
Tento dům nabízí otevřený a propojený prostor pro život s velkou terasou navazující na zahradu. Je zde i galerie, která podporuje pocit pospolitosti. Dům je do jisté míry navržen jako modulární a tak lze v budoucnosti místo galerie zvětšit horní pokoje. Panely z lisované slámy použité ve stěnách jsou zajímavé svou odlišností a schopností akumulovat, jde o difuzně otevřenou konstrukci a z hlediska fungování je dům téměř pasivní i přes velké prosklené plochy. Více informací najdete v redakční návštěvě










Čerstvé novinky ze světa dřevostaveb