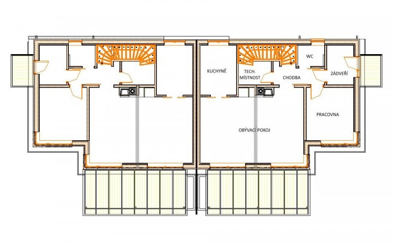
Individuální moderní dvoupodlažní rodinný dvojdům se sedlovou střechou je možné vystavět nejen ve velkém městě. Vnitřní dispozice umožňuje obyvatelům domu trávit čas společně, ale je pamatováno i na vlastní soukromí každého člena rodiny. Dům je doplněn o balkony, kryté terasy, které plynule navazují na zahradu.
RD Praha
Dodavatel:
PALIS Plzeň, spol. s r.o.
Parametry projektu RD Praha
| Společnost | PALIS Plzeň, spol. s r.o. |
| Charakteristika domu | samostatný |
| Počet podlaží | Vícepodlažní |
| Generačnost | Vícegenerační |
| Konstrukční systém | Panelový |
| Podlahová plocha (užitná) | 252 m2 |
| Zastavěná plocha | 220 m2 |
| Dispozice | 5+kk/5+1 |







Čerstvé novinky ze světa dřevostaveb