Cena dřevostavby na klíč je uvedena včetně základové desky a DPH.
RD QUICK 10 - dřevostavba na klíč
Dodavatel:
QUICKHAUS s.r.o.
Parametry projektu RD QUICK 10 - dřevostavba na klíč
| Společnost | QUICKHAUS s.r.o. |
| Charakteristika domu | samostatný |
| Počet podlaží | Vícepodlažní |
| Generačnost | Jednogenerační |
| Konstrukční systém | Panelový |
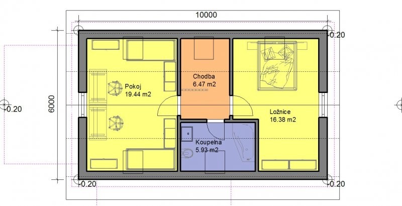
| Podlahová plocha (užitná) | 95,4 m2 |
| Zastavěná plocha | 60 m2 |
| Dispozice | 3+kk/3+1 |
| Cena dřevostavby na klíč (vč. DPH) | 2 428 370,00 Kč |








Čerstvé novinky ze světa dřevostaveb