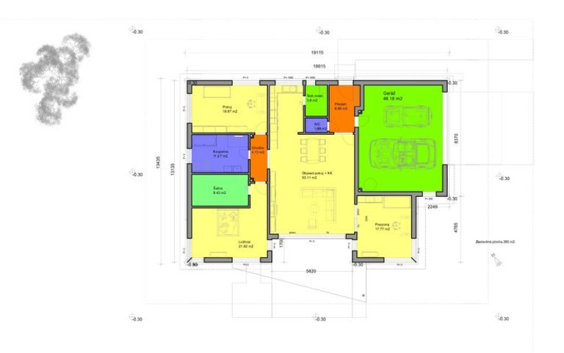
Cena této dřevostavby na klíč je včetně základové desky a DPH. Vnitřní užitná plocha je 188,91 m2 včetně garáže.
RD QUICK 12 - dřevostavba na klíč
Dodavatel:
QUICKHAUS s.r.o.
Parametry projektu RD QUICK 12 - dřevostavba na klíč
| Společnost | QUICKHAUS s.r.o. |
| Charakteristika domu | samostatný |
| Počet podlaží | Jednopodlažní |
| Generačnost | Jednogenerační |
| Konstrukční systém | Panelový |
| Podlahová plocha (užitná) | 188,91 m2 |
| Zastavěná plocha | 236,14 m2 |
| Dispozice | 4+kk/4+1 |
| Cena dřevostavby na klíč (vč. DPH) | 4 608 500,00 Kč |




Čerstvé novinky ze světa dřevostaveb