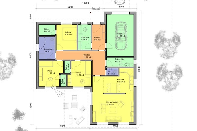
Cena dřevostavby na klíč je uvedena včetně základové desky a DPH. Vnitřní užitná plocha dřevostavby je 136,18 m2 včetně garáže.
RD QUICK 7 - dřevostavba na klíč
Dodavatel:
QUICKHAUS s.r.o.
Parametry projektu RD QUICK 7 - dřevostavba na klíč
| Společnost | QUICKHAUS s.r.o. |
| Charakteristika domu | samostatný |
| Počet podlaží | Jednopodlažní |
| Generačnost | Jednogenerační |
| Konstrukční systém | Panelový |
| Podlahová plocha (užitná) | 136,18 m2 |
| Zastavěná plocha | 163,3 m2 |
| Dispozice | 4+kk/4+1 |
| Cena dřevostavby na klíč (vč. DPH) | 3 116 695,00 Kč |






Čerstvé novinky ze světa dřevostaveb