Cena dřevostavby na klíč je uvedena včetně základové desky a DPH.
RD QUICK 8 - dřevostavba na klíč
Dodavatel:
QUICKHAUS s.r.o.
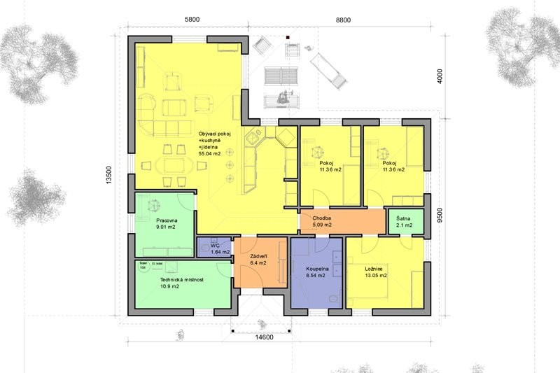
Parametry projektu RD QUICK 8 - dřevostavba na klíč
| Společnost | QUICKHAUS s.r.o. |
| Charakteristika domu | samostatný |
| Počet podlaží | Jednopodlažní |
| Generačnost | Jednogenerační |
| Konstrukční systém | Panelový |
| Podlahová plocha (užitná) | 134,5 m2 |
| Zastavěná plocha | 161,9 m2 |
| Dispozice | 5+kk/5+1 |
| Cena dřevostavby na klíč (vč. DPH) | 3 017 247,00 Kč |






Čerstvé novinky ze světa dřevostaveb