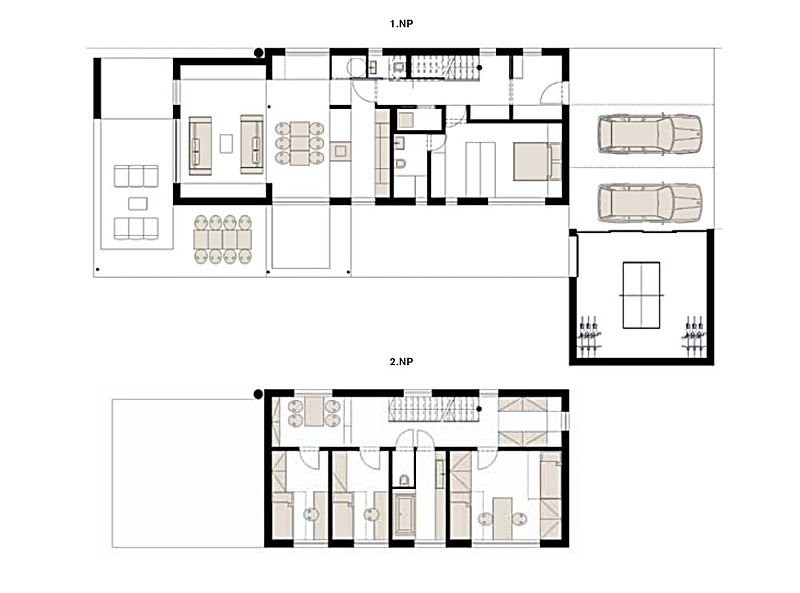
Rodinný dvojdům je vytvořený na zakázku pro početnou rodinu. Dům včetně garážového stání a skladu kombinuje omítanou fasádu s fasádou z olejovaného modřínu. V místech, kde jižní okna nestíní přístřešek nad modřínovou terasou, jsou instalovány látkové předokenní rolety.
RD Starý Plzenec
Dodavatel:
PALIS Plzeň, spol. s r.o.
Parametry projektu RD Starý Plzenec
| Společnost | PALIS Plzeň, spol. s r.o. |
| Charakteristika domu | samostatný |
| Počet podlaží | Vícepodlažní |
| Generačnost | Jednogenerační |
| Konstrukční systém | Panelový |
| Podlahová plocha (užitná) | 195 m2 |
| Zastavěná plocha | 247 m2 |
| Dispozice | 5+kk/5+1 |















Čerstvé novinky ze světa dřevostaveb